Appartamento a Lavagna

In Vendita
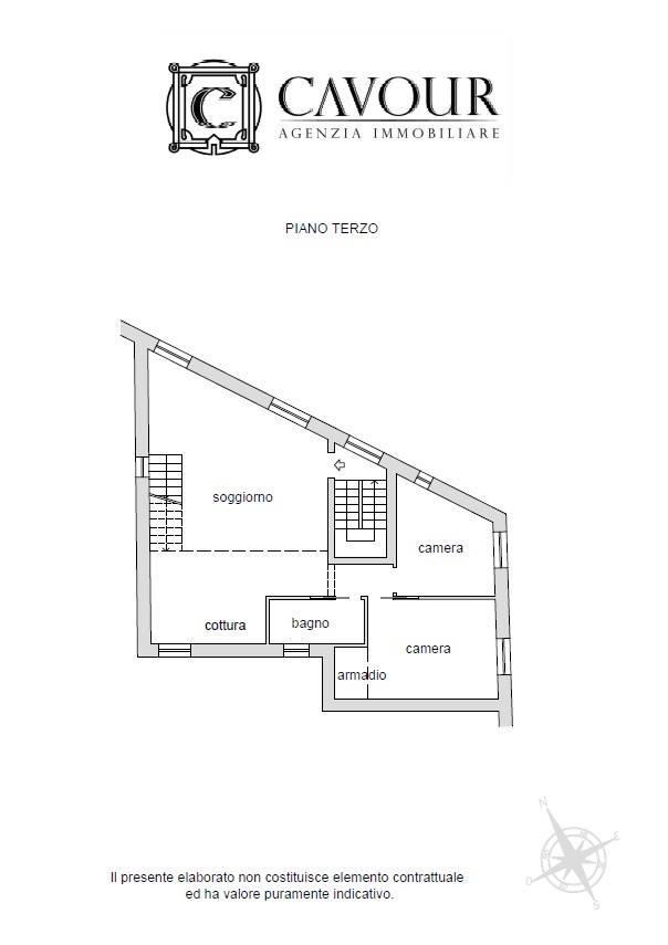
Via Montebello, angolo Via Roma – In tipica palazzina d’epoca di sole tre unità abitative (una per piano), proponiamo in vendita un appartamento di circa 130 mq posto all’ultimo piano. L’unità gode di un'eccezionale luminosità grazie all'esposizione su tutti e quattro i lati, peculiarità rara nel cuore antico della città. La dimora è stata appena ristrutturata integralmente e viene consegnata pronta per essere arredata. Anche lo stabile è oggetto di un restauro completo: Tetto in ardesia: nuovo, ultimato a Marzo 2025. Facciata: rifacimento concluso a Settembre 2025. Vano scale: in fase di ultimazione. La riqualificazione totale, che ha interessato sia l'interno della proprietà che le parti comuni, garantisce all'acquirente l'assenza di qualsiasi spesa straordinaria o manutenzione imminente per gli anni a venire. L’ingresso si apre sulla zona giorno con predisposizione per cucina a vista. L'area notte comprende due camere da letto, di cui una con cabina armadio privata. Una scala in legno di frassino su misura conduce al livello superiore, uno spazio polifunzionale perfetto come terza stanza, studio o angolo relax. Il piano superiore dispone già di tutti gli attacchi necessari per il punto cottura. Questa soluzione permette di scegliere se mantenere la cucina al piano inferiore o spostarla sopra, trasformando quest'area in un living conviviale direttamente collegato al terrazzino esterno. Completa il piano una funzionale zona lavanderia. La ristrutturazione include materiali e impianti moderni: Due bagni: uno dotato di ampia doccia walk-in e l’altro con vasca. Pavimenti: Parquet in listoni di rovere in ogni ambiente. Infissi: Serramenti in alluminio di nuova generazione e persiane in stile tradizionale. Impianti: Predisposizione aria condizionata in ogni vano e porta blindata. L'indipendenza del contesto e l'assenza di ascensore assicurano spese di gestione ordinarie irrisorie, rendendo questa proprietà una soluzione ideale sia come residenza principale che come raffinata casa vacanze.

STAMPA

Dettagli

  • Vani 5
  • Superficie 130 m²
  • Riscaldamento Autonomo
  • Condizioni Nuovo
  • Piano 3 di 3
  • Camere 3
  • Bagni 2
  • Costruito nel 1800

Caratteristiche

  • Cucina A vista
  • Balconi 1
  • Terrazzo
  • Box No
  • Giardino Privato No
  • Cantina No
  • Solaio No
  • Condizionatori
  • Ascensore No
  • Ammobiliato No

Ulteriori Informazioni

  • Spese Condominiali € 20,00
  • Spese Riscaldamento N.D.
  • Classe Energetica N.D.

Sei interessato?

Confermo di aver preso visione dell'informativa sul trattamento dei dati Privacy Policy